長沙中贏供水-無負壓二次供水設備,恒壓變頻供水設備,地埋式箱泵一體化給水泵站,不銹鋼水箱生產廠家!

深井無塔供水設備

更新:2025/5/8 12:13:55      點擊:
  • 所屬類別: 無塔供水設備
  • 產品規格: 深井加壓設備
  • 產品品牌: 中贏供水
  • 產品簡介: 深井無塔供水設備井水加壓方案應用于廠礦、公共建設、工地施工等水源是機井的情況。深井加壓設備變頻器具有很強的保護功能,水泵過載、過流、失速、欠電壓、過電壓等引起水泵損壞的因素及時保護,不引起水泵燒壞...
  • qq咨詢  留言咨詢  400電話
分享到:

中贏深井無塔供水設備特點

保持管網壓力恒定,防止管網壓力過大,管網爆裂            

    許多深井泵沒有選用恒壓控制,而是水泵直接供水,當用水負荷減少時(用戶用水少),管網壓力會升高,常常引起閥門和接頭等處爆裂,讓費大量的水,也增加了維修成本,特別是很多農村采用的是增強塑料管,更加容易造成爆管的可能。
恒壓供水的方式有水塔供水和氣壓供水及變頻恒壓供水三種方式,變頻恒壓供水控制方式是投資最少,也是最省電的控制方式,沒有水塔供水的占地問題和氣壓供水水泵頻繁啟停問題,實踐檢驗,變頻恒壓供水控制方式是較好的恒壓控制方式。

能夠節省電能,降低供水成本                             
    變頻控制可以讓深井泵在用水量小的時候,降低水泵的轉速,從而消耗的電能也隨之降低,深井泵是平方轉矩負載,其功率和轉速的三次方成正比,當轉速降為額定轉速的60%時,其功率是額定的21.6%,可節省78%的電能,此外,采用變頻調速,可以提高功率因數,把無功的電能轉化為有功的電能,實踐證明,采用變頻控制節電率至少在30%

提高水泵的使用壽命                                        
     變頻器具有很強的保護功能,水泵過載、過流、失速、欠電壓、過電壓等引起水泵損壞的因素及時保護,不引起水泵燒壞。
變頻器使水泵啟動時軟啟動,即水泵由0轉速按照加速時間,緩慢地增加轉速,這樣,減少了水泵啟動時大電流的沖擊,也減少了啟動時水泵極聯間迅速啟動時的磨損。
    水泵停機時變頻器讓水泵按照減速時間,逐步停機,這樣,減少了因為突然停機,滯留在管網的水形成水錘,對水泵造成很大的損傷。
    實踐證明,采用變頻恒壓控制能使水泵的使用壽命提高一倍以上,也能有效地減少水泵的維護次數。

智能化控制,全自動運行                                 

    供水設備采用PID閉環調節,恒壓精度高,水壓波動小。具有過載、短路、過流等各種自動保護功能,設備運行穩定、可靠,方便使用和維護。具有缺水停泵、定時自動切換水泵運轉等功能,可以實現無人職守??山⑦h程監控系統,實時監控設備的運行情況。


功率范圍:1.1-3000kW 
電源電壓:380/400/415/440/460/480/500VAC 3相±10%; 
電源頻率:35-50Hz 
控制連接:2個可編程的模擬輸入(AI);1個可編程的模擬輸出(AO);5個可編程的數字輸入(DI);2個可編程的數字輸出(DO)。 
連續負載能力:150% In,每10分鐘允許1分鐘 
串行通訊能力:標準的RS—485接口可使變頻器方便地與計算機連接。 
保護特性:過流保護、I2t、過壓保護、欠壓保護、過熱保護、短路保護、接地保護、欠壓緩沖、電機欠/過載保護、堵轉保護、串行通訊故障保護、AI信號丟失保護等。 
外型結構緊湊,安裝方便。產品經過多種電氣安全規范認證,符合GE、UL及質量認證體系ISO9001和ISO4001等。 
變頻器獨特的直接轉矩控制(DTC)功能是目前佳的電機控制方式,它可以對所有交流電機的核心變量進行直接控制,無需速度反饋就可以實現電機速度和轉矩的精確控制。 

ACS510變頻器內置PID、PFC、預磁通等八種應用宏,只需選擇需要的應用宏,相應的所有參數都自動設置,輸入輸出端子也將自動配置,這些預設的應用宏配置大大節約了調試時間,減少出錯。


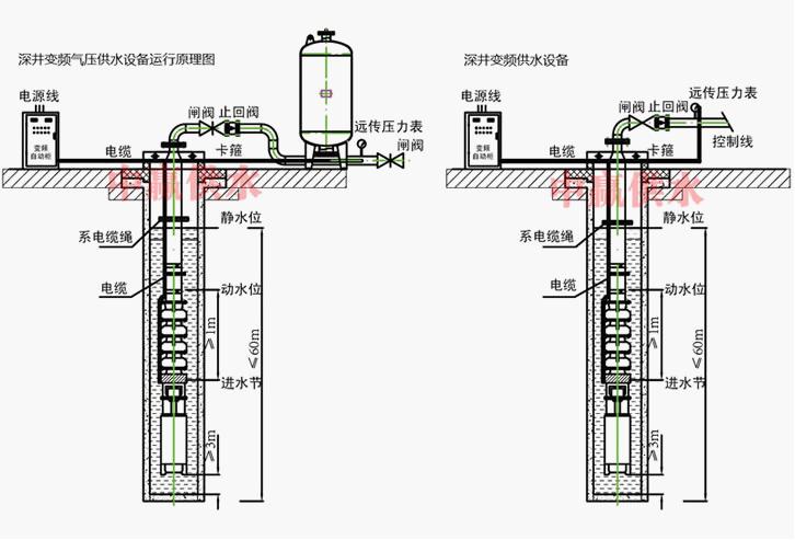
中贏深井加壓供水設備工作原理 

    深井加壓供水設備

       深井無塔供水加壓設備是通過壓力傳感器檢測罐體壓力,壓力電信號經過自動控制電路識別、放大,控制接觸器動作,從而使水泵根據罐體內壓力變化,自動運行和停止,達到自動供水的目的。無塔供水設備工作過程是水泵啟動,將水通過止回閥注入罐體,從而使罐體內壓力增大,當壓力達到所設定壓力上限時,壓力自動控制器自動關閉水泵,使水泵停止運行。由于供水罐體內壓力高于供水管網壓力,所以能自動降壓供水,當壓力減小到設定壓力下限時,自動控制水泵啟動,自動向供水罐內注水,如此往復,使設備不停供水,全自動運行。


中贏深井無塔加壓供水設備優點


1、高效節能,全部充分利用自來水管網壓力,三重強制疊壓、耗電少,運行費低。

    能根據用戶的實際用水量和使用壓力自動檢測,調節電動機的轉速(耗電量),使設備始終處于高效率的工作狀態。

 

2、水壓穩定,不會造成市政管網壓力波動。

    調節罐的真空消除也是該項目的關鍵技術,管網疊加的實現完全依靠罐上真空消除器在罐    內水被抽空時及時消除罐內真空,從而達到罐內外壓力平穩,由此不對市政管網造成負壓影響,不影響其它市政管道用戶的正常用水。湖南中贏無負壓變頻供水設備由微機構成自動閉環控制,能在0.5秒內使變化的壓力恢復正常,壓力調節精度為設定值的±5% .

 

3、體積小、占地少、安裝方便。 

     該設備與其他老式供水設備相比節約占地3~16倍,比建水塔節約節約投資15%~60%。無負壓變頻供水設備體積小,組裝、安裝調試方便,運輸及安裝工期短。

 

4、保護功能全,運行安全,操作方便

    進口水泵供水設備主機采用進口變頻調速器,自身具有欠壓、過壓、過載、短路、過熱、失速防止等保護功能,無故障運用達10萬小時以上。配電控制部分,采用智能化控制原理,智能控制系統核心部分采用西門子可編程控制器容易并入智能化管理系統,主要部件采用優質元件,整套系統具有很高的可靠性和抗干擾性,其自帶的標準串行通訊口(RS485),使得系統與計算機的通信十分方便,程序軟件的編制及設計由專業技術工程人員充分根據水泵的運作特點在多年變頻給水工程經驗基礎上精心編制而成,設備具有界面直觀,操作簡便可靠,性能穩定,高智能化等諸多特點,便于非專業人員很快熟練掌握。模擬屏人機對話,可隨時查詢、設定、調整運行參數。


5、供水功能全—旁通設計,自動切換,停電不停水

    進口水泵供水設備局部出現故障時,能啟用應急功能繼續供水。無負壓變頻供水設備可與市政供水網自動并網運行,并具有雙恒壓功能,即能滿足生活生產用水的正常壓力和流量,能在出現火情時自動轉換為高壓大流量供水,可一機多用。高壽命,運行效率高,可提高水泵的壽命3倍以上。


6、保險系數高

(1)、水位保護功能,當水罐水位低于設定水位,系統自動保護停機。液位控制器性能穩  定可靠。

(2)、自動復位功能,停電后復電時或水位恢復時系統自動啟動。

(3)、故障泵屏蔽功能,故障泵屏蔽后直接退出運作程序,由備用泵接替工作。

(4)、自動保護功能:有過載、過流、短路、缺相、超壓、欠壓及缺水停機等自動保護功能。


最新產品評論

共有1條評論

我要評論:  
姓名: *
手機:
電話:
內 容:
(內容最多500個漢字,1000個字符)
驗證碼: *圖片看不清?點擊重新得到驗證碼 看不清?!
 
更多產品
姓名: *
手機: *
您的問題: *
留下您的咨詢問題和聯系方式,我們會有專員給您解答
圖片看不清?點擊重新得到驗證碼