長沙中贏供水-無負壓二次供水設備,恒壓變頻供水設備,地埋式箱泵一體化給水泵站,不銹鋼水箱生產廠家!

全自動油水分離器,隔油提升一體化設備

更新:2025/5/8 12:40:03      點擊:
  • 所屬類別: 油水分離設備
  • 產品規格: 水油渣自動分離,環保性能好
  • 產品品牌: 中贏供水
  • 產品簡介: 全自動油水分離器也稱為隔油提升一體化設備,通常是餐飲用來處理油污水用的,因為環保的要求,排到市政污水總管的污水是經過處理的,故需要加裝油水分離器以達到城市排放標準。集油水分離,強排,固液分離,恒溫,反沖洗自清潔與一體智能化運行,設備內部設計精細,污水進入設備后能更為有效的進行分層處理...
  • qq咨詢  留言咨詢  400電話
分享到:

全自動油水分離器,隔油提升一體化設備

全自動隔油池提升一體化設備

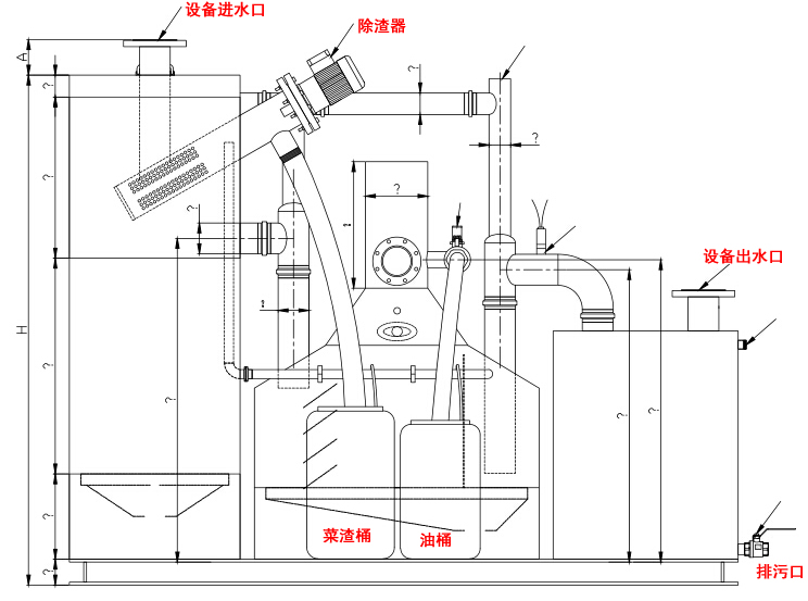
全自動油水分離器,隔油提升一體化設備安裝原理圖

 全自動油水分離器,隔油提升一體化設備安裝原理圖

 全自動一體化油水分離器簡介

    全自動一體化油水分離器是中贏供水在普通的油水分離設備的基礎上,結合市場需求進行的產品升級,全自動一體化油水分離器具有自動除渣、油水自動分離、自動刮油排油、恒溫加熱裝置、污水提升、全自動智能化控制系統,操作簡便,運行安全穩定。

    全自動一體化油水分離器具備雜物分離、油水分離和污水提升三個主要功能區,餐飲廢水由進水口進入除渣集泥排泥區,廢水所含固態殘渣由除渣機自動隔離排放至殘渣收集桶內。含油廢水繼續流入到油水分離區,經過水流導向裝置、平流物理分層輔以曝氣跟恒溫加熱裝置,促使油脂從油水中分離上浮至錐形集油區,當油脂到達一定高度位置,由自動刮油裝置將上浮油脂自動排放至油脂收集桶內,并配以手動液壓放油閥,亦可排出浮油。經油水分離區處理后污水由導流裝置進入提升區,當提升箱內液位達到設定值時,提升泵自動工作將箱內污水提升至市政管網。    

 

 

 

 

全自動油水分離器,隔油提升一體化設備工作原理

 全自動油水分離器,隔油提升一體化設備工作原理

    全自動油水分離器主要由進水口、除渣器、雜物分離倉箱、細微顆粒存儲區、排渣閥、油水分離區、儲油區、恒溫電加熱系統、攪拌系統、油窗視鏡、排油口、排空閥、液位控制系統、污水提升裝置等。全自動油水分離器工作原理為:含油廢水進入隔油器后,通過特殊設計的鋸齒堰結構,將雜物攔截至儲渣區定期打開閥門排出雜物。含油廢水通過第一倉溢流(降低水的流速)進第二倉油水分離倉,油水分離倉為全密閉非對稱結構,廢水在油水分離區停留大于4分鐘以上,油脂將自動收集至廢油存儲,用戶可通過設置在費油區域的油窗視鏡觀察廢油倉的油位情況,如油位較高可手動打開排油閥門將廢油排至設備外部廢有桶內;設備廢油倉設有自動恒溫裝置,防止溫度較低油脂結塊,以提高排油效率;設備廢油倉還設有攪拌裝置防止用戶長時間不排油,油脂板結無法排出。設備帶有自動提升功能,當設備內廢水水位到達設備的低液位時,單臺泵啟動排水,到達高點時兩臺泵同時啟動排水,到達最頂點時設備發出報警以提醒用戶,污水超出設備設計處理能力2倍以上。

 

 

 

全自動油水分離器,隔油提升一體化設備9大優點:


1.智能一體化程度高:

    集油水分離,強排,固液分離,恒溫,反沖洗自清潔與一體智能化運行,設備內部設計精細,污水進入設備后能更為有效的進行分層處理。
2.特別的外形設計:
    結合客戶安裝條件需求,設備安裝更為簡便,更為減少占用空間。設備配有輔助水箱,單腔放空閥,使用環境更為整潔干凈。
3.自動過濾系統:
    特別的軸承式螺旋絞龍過濾裝置是我司自主研發結構,具有自動過濾雜物功能,無需人工清掏,避免雜物進入處理程序步驟,避免造成設備以及水泵的堵塞。軸承式安裝使設備穩定運行,并且不會產生噪音污染。
4.全自動功能:
    集自動排泥,自動油水分離,自動恒溫加熱,自動反沖洗清潔。自動除渣、自動強排于一體。
5.自動排泥裝置:
    設置強排泥水泵,定期進行排泥處理。設備運行過程中,泥沙會進入設備進行堆積,久而久之會使得設備頻繁運行,增加損耗,該裝置定期運行,排除設備內部泥沙,減輕設備運行負擔,增加設備使用壽命。
6.自動油水分離裝置:
    特別的單導向自伸縮刮油裝置,是我司自主研發結構,出油效率高,使用壽命長。
7.自動恒溫加熱裝置:
    精密的溫度傳感和加熱裝置構成的恒溫系統,保證油脂不會凝固,不會附著設備上而導致難以清理。
8.自動反沖洗裝置:
    獨立的自動反沖洗裝置,定期對設備內部進行清洗,將設備運行中附著的雜物,油污等沖刷,再次進入處理程序中進行處理。
9.特別設計:
    智能化全保障控制系統;密封化設計;靜音化設計;模塊化設計;特別回流設計;



最新產品評論

共有2條評論

我要評論:  
姓名: *
手機:
電話:
內 容:
(內容最多500個漢字,1000個字符)
驗證碼: *圖片看不清?點擊重新得到驗證碼 看不清?!
 
更多產品
姓名: *
手機: *
您的問題: *
留下您的咨詢問題和聯系方式,我們會有專員給您解答
圖片看不清?點擊重新得到驗證碼