長沙中贏供水-無負壓二次供水設備,恒壓變頻供水設備,地埋式箱泵一體化給水泵站,不銹鋼水箱生產廠家!
信息搜索???Search
聯系我們???Contact

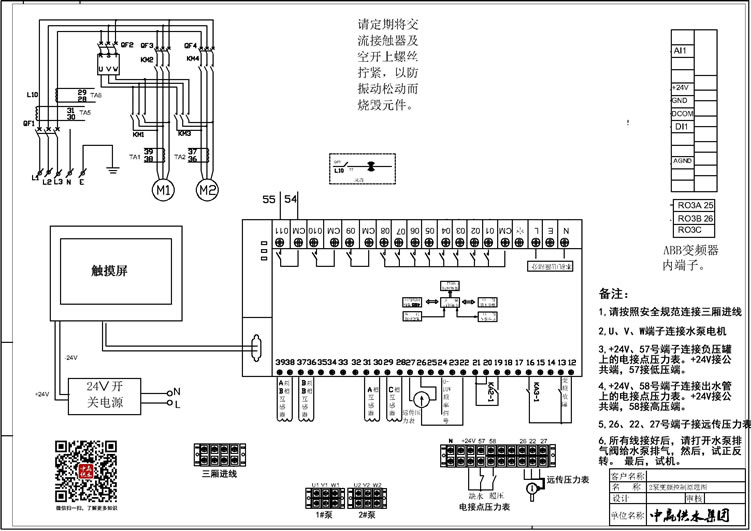
給水好幫手:變頻恒壓供水原理圖,變頻器恒壓供水電路圖

2018/4/4 10:28:11??????點擊:

供水專家的好幫手:變頻恒壓供水原理圖,變頻器恒壓供水電路圖


    變頻器恒壓供水原理圖/電路圖為便于閱讀與分析控制線路,根據簡單、清晰的原則,變頻器恒壓供水原理圖/電路圖采用電氣元件展開的形式繪制而成。變頻器恒壓供水原理圖/電路圖是用來表明設備電氣的工作原理及各電器元件的作用,相互之間的關系的一種表示方式。 運用電氣原理圖的方法和技巧,對于分析電氣線路,排除機床電路故障是十分有益的。變頻器恒壓供水原理圖/電路圖一般由主電路、控制電路、保護、配電電路等幾部分組成。它包括所有電氣元件的導電部件和接線端點,但并不按電氣元件的實際位置來畫,也不反應電氣元件的形狀、大小和安裝方式。
    由于電氣原理圖具有結構簡單、層次分明、適于研究、分析電路的工作原理等優點,所以無論在設計部門還是生產現場都得到了廣泛應用。

變頻恒壓供水原理圖,變頻器恒壓供水電路圖


中贏變頻器恒壓供水設備特點
1、 節電:優化的節能控制軟件,使水泵實現限度地節能運行;
2、 節水:根據實際用水情況設定管網壓力,自動控制水泵出水量,減少了水的跑、漏現象;
3、 運行可靠:由變頻器實現泵的軟起動,使水泵實現由工頻到變頻的無沖擊切換,防止管網沖擊、避免管網壓力超限,管道破裂。
4、 聯網功能:采用全中文工控組態軟件,實時監控各個站點,如電機的電壓、電流、工作頻率、管網壓力及流量等。并且能夠累積每個站點的用電量,累積每臺泵的出水量,同時提供各種形式的打印報表,以便分析統計。
5、 控制靈活:分段供水,定時供水,手動選擇工作方式。
6、 自我保護功能完善:如某臺泵出現故障,主動向上位機發出報警信息,同時啟動備用泵,以維持供水平衡。萬一自控系統出現故障,用戶可以直接操作手動系統,以保護供水。

變頻器恒壓供水設備應用范圍
1、 自來水廠、加壓泵房
2、 居民生活區、賓館及其它建筑
3、 企業生產用水
4、鍋爐循環水系統
5、 農田灌溉系統



姓名: *
手機: *
您的問題: *
留下您的咨詢問題和聯系方式,我們會有專員給您解答
圖片看不清?點擊重新得到驗證碼